We help homeowners, contractors, and developers transform ideas into fully compliant construction drawings — delivered fast, accurate, and 100% remote.
FrameFlux is a remote architectural and engineering firm delivering high-quality design solutions for residential and light commercial projects across the United States. Our team specializes in creating permit-ready drawings that meet local requirements while maintaining design excellence.






Fast Turnaround Time
Within 3–7 Days
We’d love to share with all of you some of the new additions we have released since the beginning of the year.


































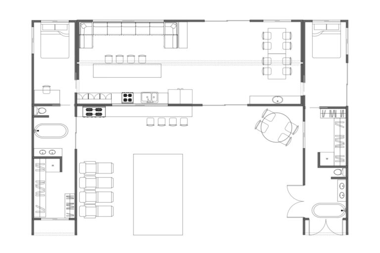
We design warm, functional homes tailored to your lifestyle. Every detail supports comfort, flow, and timeless living.
We create modern offices and boutique retail spaces that strengthen brand identity and enhance customer or team experience.
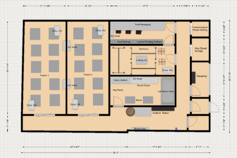
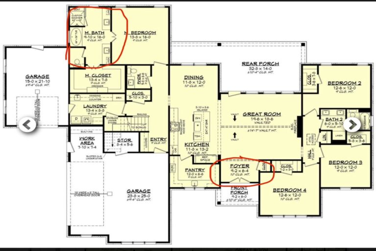
Floor plans, remodeling layouts, and permit drawings tailored to your project needs.
We produce photorealistic 3D visuals that let you preview the final design and make confident decisions before construction.
Complete HVAC, electrical, and plumbing systems designed for efficiency and compliance.
Safe and optimized structural solutions including framing, foundation, and load calculations.
We begin by understanding your lifestyle, goals, and the character of your space.
We shape your ideas into thoughtful layouts, materials, and a cohesive design direction.
We prepare clear, compliant drawings to ensure a smooth approval process.
We present a complete design package, ready to guide the execution of your space.
Really solid work. The floor plan was well thought out and the MEP drawings were clear. Communication was smooth throughout.
Floor Plan & MEP
I’ll be honest — I was a bit skeptical at first. But once we started working together, everything went smoothly. The team delivered solid structural drawings and good support throughout.
Structural Design
Loved the final design. They understood the concept well and made the space feel modern and relaxing.
Interior Design (Spa)
Nice design and layout. A couple of revisions were needed, but the team handled it professionally.
Exterior Backyard
Very organized and professional. The MEP plans helped us move forward quickly with the project.
MEP Design
Clean and accurate drawings. Took some back and forth initially, but final result was good.
Blueprints
We offer complete architectural and engineering design services including floor plans, remodeling layouts, permit drawings, MEP design (HVAC, electrical, plumbing), and structural design for residential and light commercial projects.
Yes. All our drawings are prepared to meet standard U.S. building requirements and are suitable for permit submission. However, final approval depends on local authorities and regulations.
Our process is simple:
Consultation
Concept Design
Detailed Drawings
Final Delivery (Permit-ready set)
Most projects are completed within 3–10 business days, depending on size and complexity.
We typically require:
Project details
Sketches or reference images (if available)
Site dimensions
Specific requirements
Yes. We provide revisions to ensure the final design meets your requirements and expectations.
Project costs typically range from $500 to $3000+, depending on scope, size, and complexity.
Yes, we work globally, but our services are primarily tailored to U.S.-based projects and standards.
You can start by:
Booking a consultation
Filling out our contact form
Sending your project details
es, CAD/source files can be provided upon request (included in premium packages or as an add-on).
Tell us about your space — we’ll help bring clarity, ideas, and a personalized design direction.
Powered by Frameflux